Eladó családi ház Dunaharaszti 110 500 000 Ft

Leírás

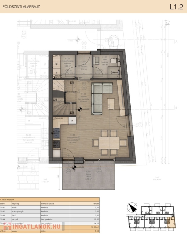
Dunaharasztiban eladó új építésű lakások!

Budapest közvetlen közelében, csendes és családbarát környezetben kínálunk eladásra 9 lakásos társasházban még 7 otthont.

Főbb jellemzők:
• Új építésű, tégla szerkezet, korszerű hőszivattyús fűtés és klíma
• Tágas amerikai konyhás nappali, 3 hálószoba, 2 fürdőszoba + háztartási helyiség
• Választható burkolatok és beltéri ajtók
• Saját kertkapcsolat (lakásonként eltérő méret)
• Zárt, parkosított udvar, elektromos kapubeálló

Kiváló lokáció: iskola, óvoda, üzletek, sportolási lehetőségek pár perc alatt elérhetők, jó közlekedési kapcsolatokkal.

Az ingatlanok alkalmasak CSOK és 3%-os hitel igénybevételére.
Az építkezés 40%-os készültségen áll, a lakások személyesen is megtekinthetők.

A lakások belső elrendezésüket tekintve, azonos paraméterekkel rendelkeznek.(~85 nm lakótér) Vételáruk 99.900.000- 112.900.000 Ft közt elérhető - az aktuális ingatlanhoz tartozó kert rész függvényèben.

Megtekintenéd személyesen is? Keress bizalommal időpontért, és találd meg új otthonod!

Családi ház részletei

Ár: 110 500 000 Ft
Méret: 85 négyzetméter
Azonosító: 11571932
Telek: 114 négyzetméter
Ingatlan állapota: Épülő
Jelleg: sorház
Építőanyag: Kérdezzen rá a hirdetőtől »
Fűtés jellege: Hőszivattyú
Komfort fokozat: Összkomfort
Kor: Új építésű
Elhelyezkedés: Udvari
Szintek száma: 2 szint
Egész szobák: 3
Nappalik: 1

Egyéb jellemzők

  • Beépíthető tetőtér
  • Csatorna
  • Garázs
  • Kábel TV
  • Melléképület
  • Padlás
  • Parketta
  • Pince
  • Terasz